物件詳細情報

Tenant Information

田無メディカルブリッジ(西東京市)

募集中
所在地
東京都西東京市田無町2-12-30
アクセス
西部新宿線「田無駅」より徒歩2分
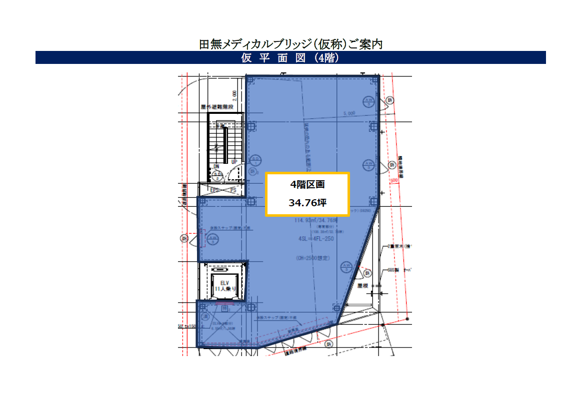
募集区画
3階 36.85坪
4階 34.76坪
5階 29.02坪
入居時期
即日入居可能
月額賃料
3階 596,000円(税別)
4階 554,000円(税別)
5階 449,000円(税別)
敷金
賃料10ヶ月分
募集診療科目
整形外科・皮膚科・小児科・眼科・耳鼻咽喉科・婦人科・泌尿器科・心療内科・その他

Comment

西部新宿線「田無駅」より徒歩2分、好立地の新築クリニックモールです。

田無駅からの地域住民の生活導線上に位置し、駅ホームや踏切ごしからも

見えるなど抜群の視認性!クリニックモールはすぐに認知されると考えられます。

壁面に大看板を設置し、歩行者からも見易い低位置にも

看板を掲示することで患者様の集患につながります。

皮膚科、泌尿器科、整形外科、ペインクリニックの診療圏が良好です!